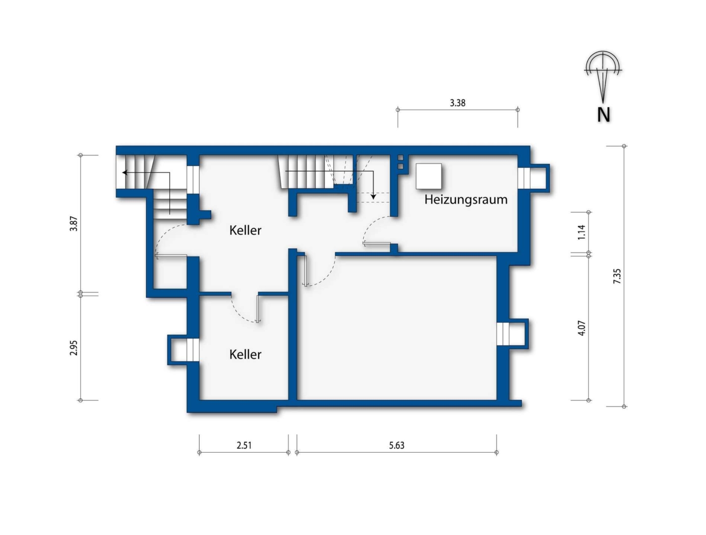
Hier erwartet Sie Ihr neues Zuhause mit einer Breite von 7,35m - also gar nicht typisch Reihenhaus. Die Räume sind entsprechend großzügig und hell und eher quadratisch als schlauchig geschnitten. Im Erdgeschoss finden Sie neben Küche, Wohn- und Esszimmer eine Garderobe und ein Gäste-WC.
Im Obergeschoss finden Sie 3 schöne Zimmer und ein Wannenbad.
Eine 2017 eingebaute Treppe führt zum ausgebauten und gedämmten Spitzboden, der vielseitig nutzbar ist.
Nach und nach wurden in diesem Haus bereits Modernisierungsmaßnahmen durchgeführt. So ist die Heizung aus 2008 und der Ausbau des Spitzbodens erfolgte 2017.
Zur Grundstücksfläche von 228m² gehört Ihnen des Weiteren ein 1/14 Miteigentumsanteil an dem 416m² großem Garagengrundstück.




