Gebaut in bester Viebrock-Qualität befindet sich Ihr neues Zuhause direkt am Naturschutzgebiet nur wenige Gehminuten vom Lütauer See entfernt. Perfekt, um sich im Sommer nach Feierabend im See abzukühlen. Auch während der anderen Jahreszeiten lädt die Umgebung zu wunderschönen Spaziergängen ein.
Der große Wohn- und Essbereich (ca. 56 m²) lässt Herzen höher schlagen. Freunde von wohliger Feuerwärme werden sich über den bereits vorhandenen Kaminofen im Wohnzimmer freuen. Auf der großen teilweise überdachten Terrasse können Sie gemütliche Stunden im Kreise Ihrer Familie und mit Ihren Freunden verbringen. Die offene Einbauküche (ca. 18 m²) mit Tresen, die zeitlos in Magnolia-creme gehalten ist, lässt ebenfalls keine Wünsche offen. Hier haben Sie viel Platz zum Zaubern toller Gerichte für Ihre Lieben. Ein Hauswirtschaftsraum mit Platz für Gefrierschrank, Lagerflächen und Waschbecken liegt direkt neben der Küche. Im Erdgeschoss finden Sie neben der großzügigen Diele mit Blick auf die Empore noch ein Gäste WC mit Dusche.
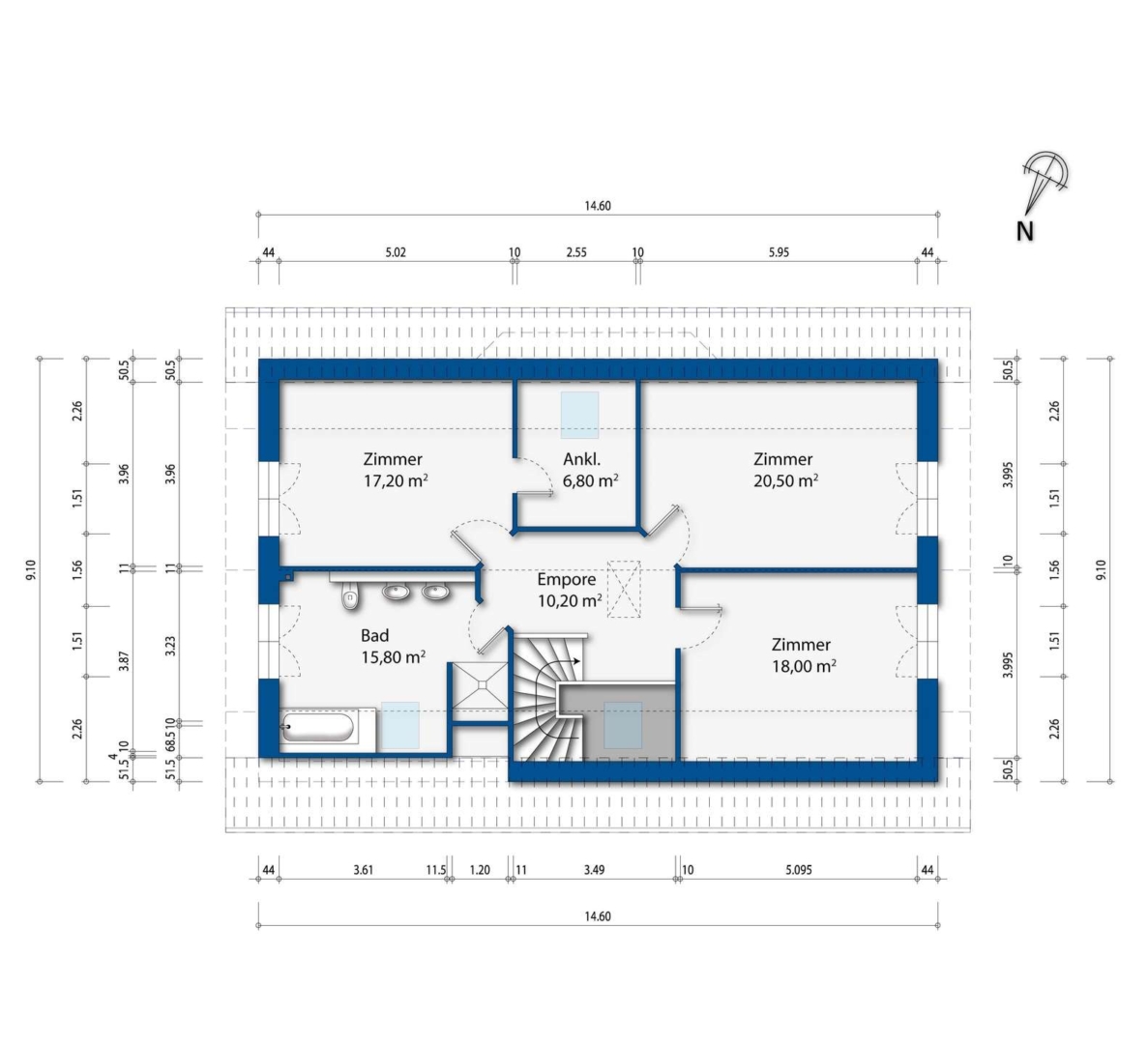
Oben im Haus befinden sich drei geräumige Zimmer mit bodentiefen Fenstern, ein Vollbad sowie die Empore. Vom Elternschlafzimmer gelangen Sie in ein Ankleidezimmer en Suite. Der ausgebaute Spitzboden ist über eine Monarchtreppe zu erreichen.
Jugendliche oder Erwachsene, die ein Homeoffice benötigen, werden sich über die beiden wohnlich ausgebauten Räume im Keller mit großen Fenstern und einer Deckenhöhe von 2,32 m freuen. Vom Keller haben Sie auch einen Außenzugang zum Garten. Carport mit Abstellraum, Holzhaus und Gartenhaus runden das Angebot ab. Ein wundervolles Zuhause für Sie!




