Verfügbar

Traumlage mit der Ostsee direkt vor der Tür

Eckdaten

Kaufpreis 675.000 €
Zimmer 3
Schlafzimmer 2
Wohnfläche ca. 67,68 m²

Objektbeschreibung

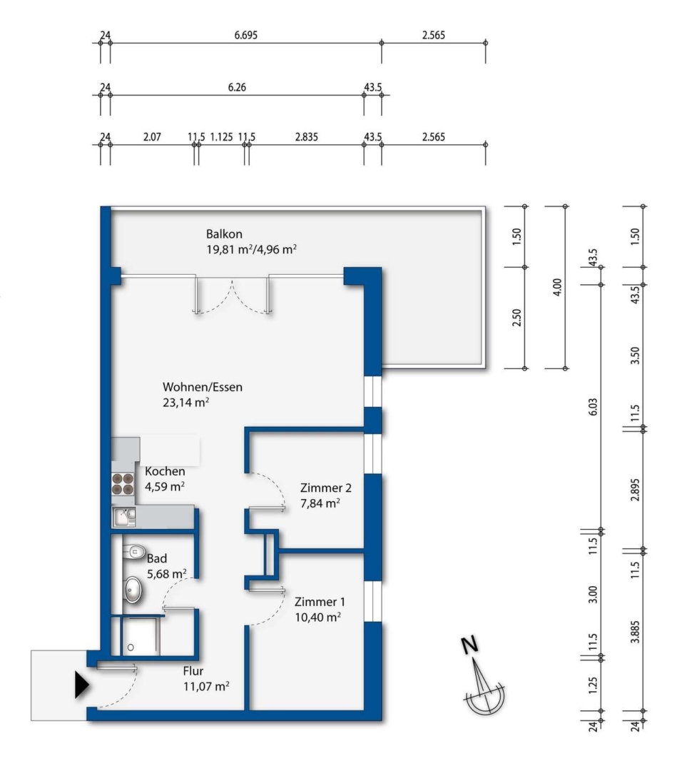
Die sehr gepflegte Wohnung befindet sich in Traumlage auf dem Steinwarder zwischen Ostsee und Binnensee. Die Ostsee mit dem 4 km langen Sandstrand ist nur wenige Gehminuten entfernt. Vom geräumigen Wohn- und Essbereich mit bodentiefer Panorama-Fensterfront blicken Sie ins Grüne und haben einen seitlichen Blick auf die Ostsee. Auf dem großzügigen überdachten Balkon können Sie die frische Seeluft genießen und den Möwen zuhören. Die helle Einbauküche lässt ebenfalls keine Wünsche offen. Hier haben Sie viel Platz zum Zaubern toller Gerichte für Ihre Lieben. Die zwei Schlafzimmer mit bodentiefen Fenstern sind geschmackvoll eingerichtet. Bei Wellengang können Sie beim Einschlafen bei geöffnetem Fenster sogar das Rauschen des Meeres hören. Das moderne Bad mit Walk-in Dusche und Glasabtrennung hat eine Fußbodenerwärmung sowie eine Handtuchheizung. In der gesamten Wohnung wurde ein einheitlicher hochwertiger Vinylboden in Holzoptik verlegt. Ein praktischer Einbauschrank im Flurbereich bietet weiteren Stauraum. Zusätzliche Annehmlichkeiten wie ein Fahrstuhl im Haus und ein eigener Außenstellplatz runden dieses einmalige Angebot ab.

Eine Ferienvermietung ist bei dieser Immobilie zulässig. Für Investoren spiegelt sich die Traumlage in den Vermietungszahlen wider. Das Mobiliar wird mitverkauft, so dass eine Vermietung nahtlos erfolgen kann.

Objektdaten

Ort
23774 Heiligenhafen
Wohnfläche
ca. 67,68 m²
Grundstücksfläche
ca. 5.099 m²
Anzahl Zimmer
3
Anzahl Schlafzimmer
2
Anzahl Badezimmer
1
Anzahl Balkon / Terrasse
1
Balkon/Terrassenfläche
ca. 19,81 m²
Anzahl Stellplätze
1
Kaufpreis
675.000 €
Hausgeld
398 €
Provisionspflichtig
Ja
Käuferprovision
3,57% inkl. MwSt.
Provisionshinweis
Die Gesamtprovision in Höhe von 7,14% inkl. MwSt. wird hälftig auf Käufer und Verkäufer aufgeteilt.
Verfügbar ab
Nach Vereinbarung
Als Ferienwohnung nutzbar
Ja
Objektart
Wohnung
Nutzungsart
Wohnen
Verfügbarkeit
Verfügbar
Vermarktungsart
Kauf
Baujahr
2015
Zustand
Neuwertig

Ausstattung

Wohnung:
- Geräumiger Wohn-/Essbereich mit bodentiefer Panorama-Fensterfront
- Großzügiger überdachter Balkon mit Blick auf Ostsee, Biotop und Binnensee
- 2 Schlafzimmer mit bodentiefen Fenstern
- Offene Einbauküche mit Backofen, Kühlschrank, Geschirrspüler, Cerankochfeld und Dunstabzug
- Modernes Bad mit Walk-in Dusche, Fußbodenerwärmung und Handtuchheizung
- Sanitärobjekte von Villeroy & Boch und Armaturen von Grohe
- Einbauschrank im Flur
- Einheitlicher Vinylboden in Holzoptik
- Kunststofffenster
- Plissees an allen Fenstern für Sonnen- und Sichtschutz
- Gegensprechanlage
- Mobiliar wird mitverkauft

Allgemeines:
- Außenstellplatz
- Fahrstuhl im Haus
- Fahrradhaus
- Gas-Zentralheizung
- Trinkwasserenthärtungsanlage
- WEG mit 33 Einheiten; aufgeteilt auf zwei Häuser "Meerdüne" und "Dünengras"
- Ferienvermietung und Zweitwohnsitz zulässig

Balkon
Stellplatz
Gehobene Ausstattung
Dusche
Einbauküche
Fliesen
Personenaufzug
Parken im Freien
Barrierefrei

Karte

Google Maps

Mit dem Laden der Karte akzeptieren Sie die Datenschutzerklärung von Google.
Mehr erfahren

Karte laden

Energieausweis

Energieausweisliegt vor
Energie­ausweistypBedarfsausweis
Erstellt am16.12.2015
Gültig bis15.12.2025
PrimärenergieträgerGas
EnergieeffizienzklasseA
Endenergiebedarf49,80 kWh/(m²·a)
HeizungsartZentralheizung
HeizungsartZentralheizung
A+
A
B
C
D
E
F
G
H

weitere Objekte

Poth, Monika
Poth, Monika
Lademannbogen 124
22339 Hamburg

KONTAKT

HBF Immobilien GmbH
Lademannbogen 124
22339 Hamburg
Tel: +49 40 5380990
Fax: +49 40 53809970
E-Mail: info@hbf-immo.de

PARTNERSCHAFTEN

© Copyright – HBF Immobilien | Webdesign-Hamburg.com