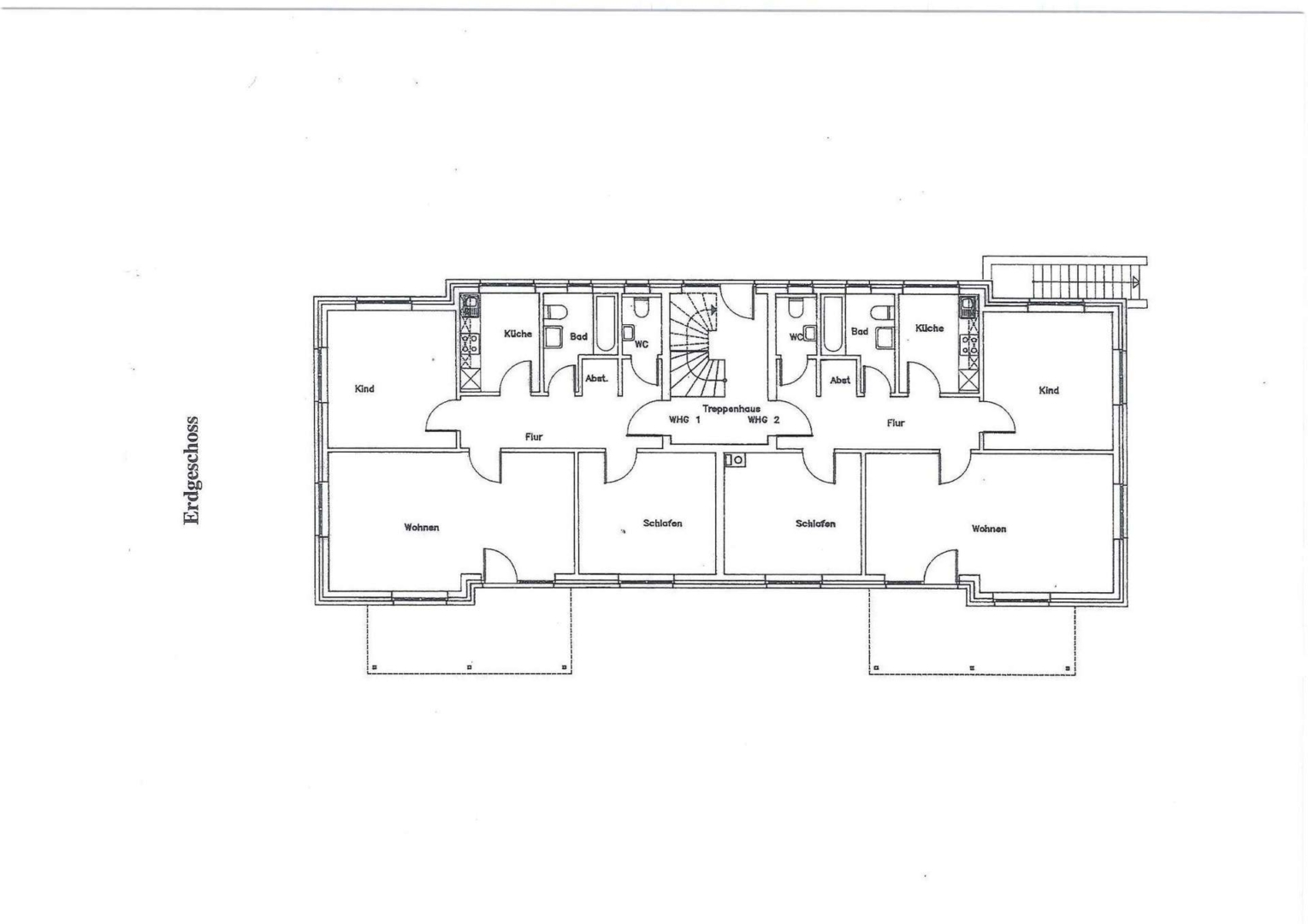
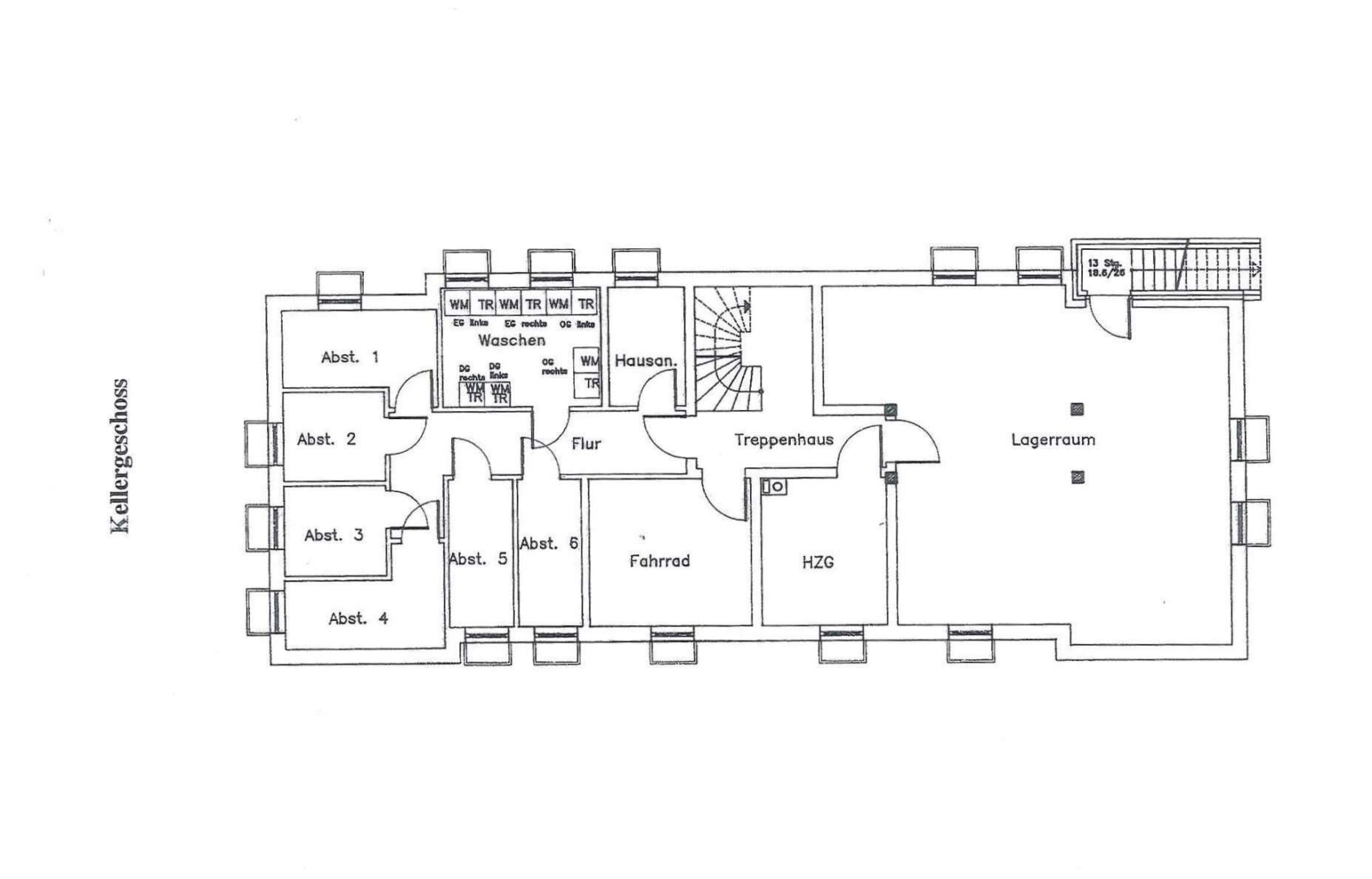
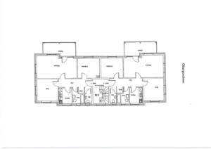
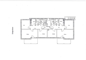
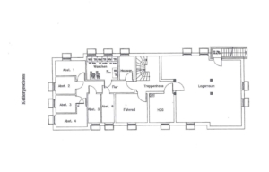
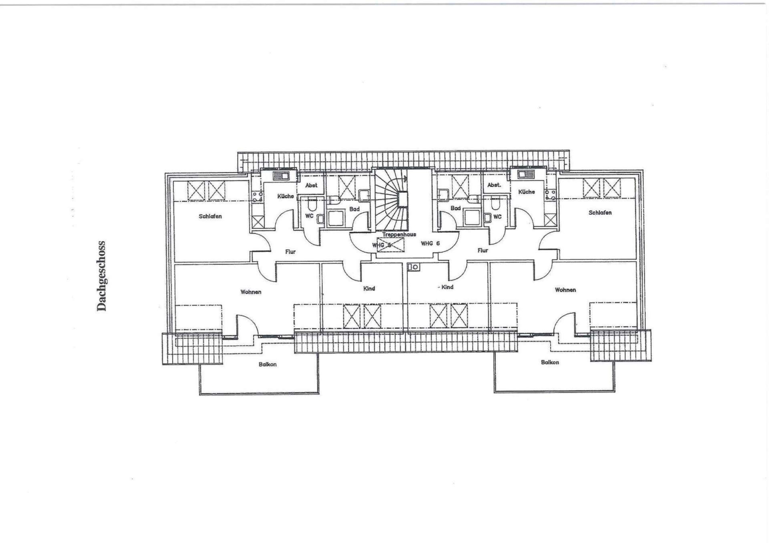
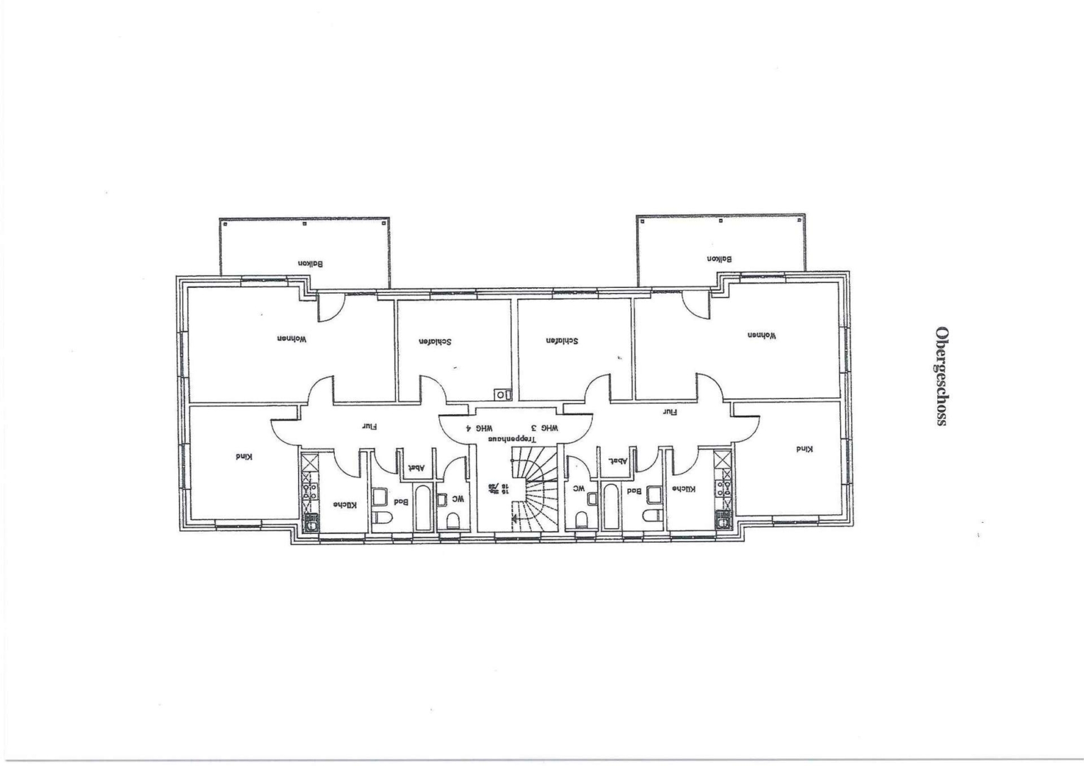
Dieses moderne Rotklinker Zinshaus liegt in ruhiger, begrünter Hinterhauslage in zentraler Lage Hamburgs. Das Objekt ist aufgeteilt. Zum Objekt gehören 7 PKW Stellplätze. Das Objekt wurde 2001 gebaut und hat 6 Wohnungen und eine Gewerbeeinheit im Souterrain. Alle Wohnungen haben eine Einbauküche, eine große Terrasse oder einen Balkon. Das Objekt ist voll vermietet.
Rufen Sie mich an, um einen Ortstermin zu vereinbaren. Michael Friebel 0163 312 04 21
Kauf




