Diese Kombination aus Traumlage und Modernität finden Sie nicht häufig.
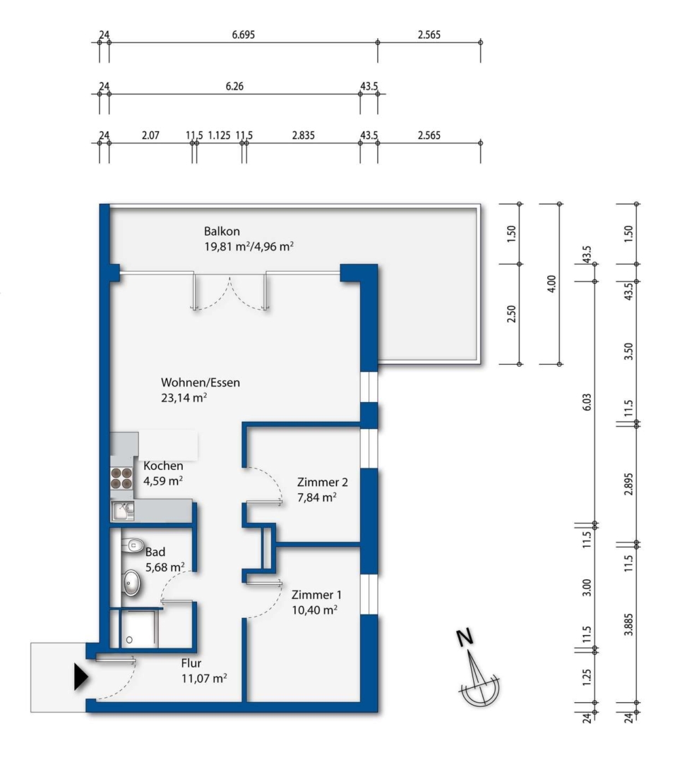
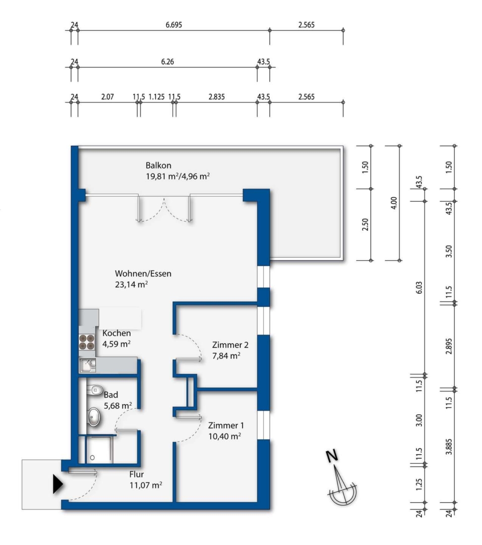
Hier wohnen Sie und/oder Ihre Feriengäste in 1. Reihe zur Ostsee. Der lange Sandstrand ist nur wenige Schritte entfernt. Vom geräumigen Wohn- und Essbereich mit bodentiefer Panorama-Fensterfront blicken Sie auf die Ostsee. Auf dem großzügigen überdachten Balkon können Sie die frische Seeluft genießen und den Möwen zuhören. Die helle Einbauküche lässt ebenfalls keine Wünsche offen. Hier haben Sie viel Platz zum Zaubern toller Gerichte für Ihre Lieben. Die zwei Schlafzimmer mit bodentiefen Fenstern sind geschmackvoll eingerichtet. Bei Wellengang können Sie beim Einschlafen bei geöffnetem Fenster sogar das Rauschen des Meeres hören. Das moderne Bad mit Walk-in Dusche und Glasabtrennung hat eine Fußbodenerwärmung sowie eine Handtuchheizung. In der gesamten Wohnung wurde ein einheitlicher hochwertiger Vinylboden in Holzoptik verlegt. Ein praktischer Einbauschrank im Flurbereich bietet weiteren Stauraum. Zusätzliche Annehmlichkeiten wie ein Fahrstuhl im Haus und ein eigener Außenstellplatz runden dieses einmalige Angebot ab.
Eine Ferienvermietung ist bei dieser Immobilie zulässig. Für Investoren spiegelt sich die Traumlage in den Vermietungszahlen wider. Das Mobiliar wird mitverkauft, so dass eine Vermietung nahtlos erfolgen kann.
Der Energieausweis ist beantragt und liegt zur Besichtigung vor.




