Im Erdgeschoss finden Sie noch eine geräumige Küche zum Zaubern von Gerichten….
…und ein Gäste-WC
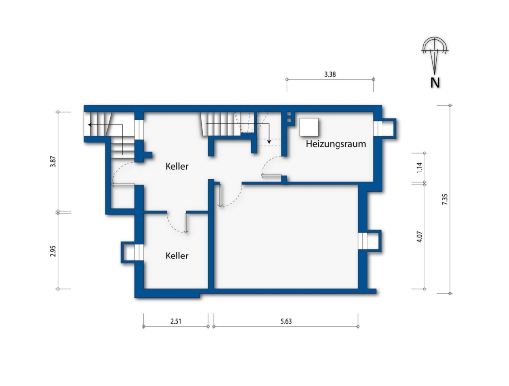
Ihr neues Zuhause ist voll unterkellert
Eine Garage rundet das Angebot ab
Sie wohnen in super ruhiger Lage…
Ihr ganzes Haus bietet viel Licht!
In wenigen Schritten gelangen Sie zum Volksdorfer Wald
Grundriss Erdgeschoss
Grundriss OG
Grundriss Kellergeschoss
Elementor-post-screenshot_5002_2026-04-30-12-55-14_53f6eb9e.png
KONTAKT
HBF Immobilien GmbH
Lademannbogen 124
22339 Hamburg
Tel: +49 40 5380990
Fax: +49 40 53809970
E-Mail: info@hbf-immo.de
PARTNERSCHAFTEN

Navigation
Infos




ausgestellt für Stephanie Sauer
