Optimal für Paare mit einem Kind.
Ihr neues Zuhause steht auf einem 840 m² großem Erbpachtgrundstück, dessen Vertrag noch bis zum 31.12.2062 läuft. Die monatliche Erbpacht beträgt € 190,-
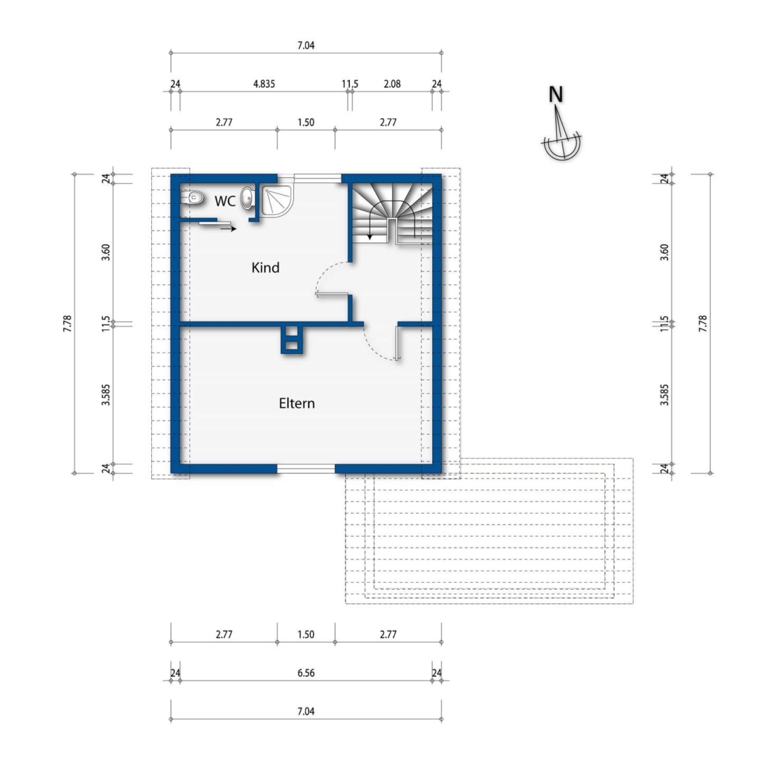
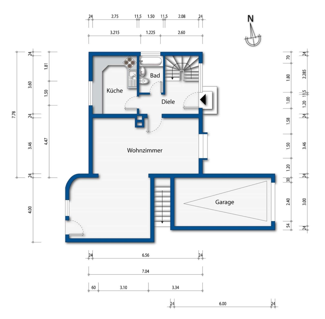
Alle Räume sind großzügig und hell, der Garten ist mit viel Liebe zum Detail angelegt. Besonders hervorzuheben ist der große Wohnbereich, in dem Sie Platz für Essen, Wohnen und auch Arbeiten haben. Durch einen Anbau aus den 80er Jahren ist im Obergeschoss eine wundervolle Dachterrasse entstanden, die über ein Schlafzimmer erreichbar ist. Das 2. Schlafzimmer verfügt über eine Duschecke und ein eigenes WC, abgetrennt durch eine Schiebetür.
Das Haus ist voll unterkellert.
Lassen Sie sich bei einer Besichtigung von den vielen Möglichkeiten des Hauses inspirieren.
Kauf




